DOM DUŻY

PLN 7,000.00

PROJEKT W OPRACOWANIU

POWIERZCHNIE BUDYNKU:

Powierzchnia zabudowy: 115,52 m2

Powierzchnia użytkowa: 127,7 m2

Powierzchnia całkowita: 191,49 m2

Wymiary budynku: 16,3 × 8,6 m

Minimalne wymiary działki: 24,3 × 17,6 m

INNE PARAMETRY BUDYNKU:

Liczba kondygnacji: 2

Liczba pokoi: 5

Garaż: 2-stanowiskowy, wbudowany

Technologia: Wood core house

Wysokość budynku: 8,1 m

Kąt nachylenia dachu: 45 stopni

ZESTAWIENIE POMIESZCZEŃ:

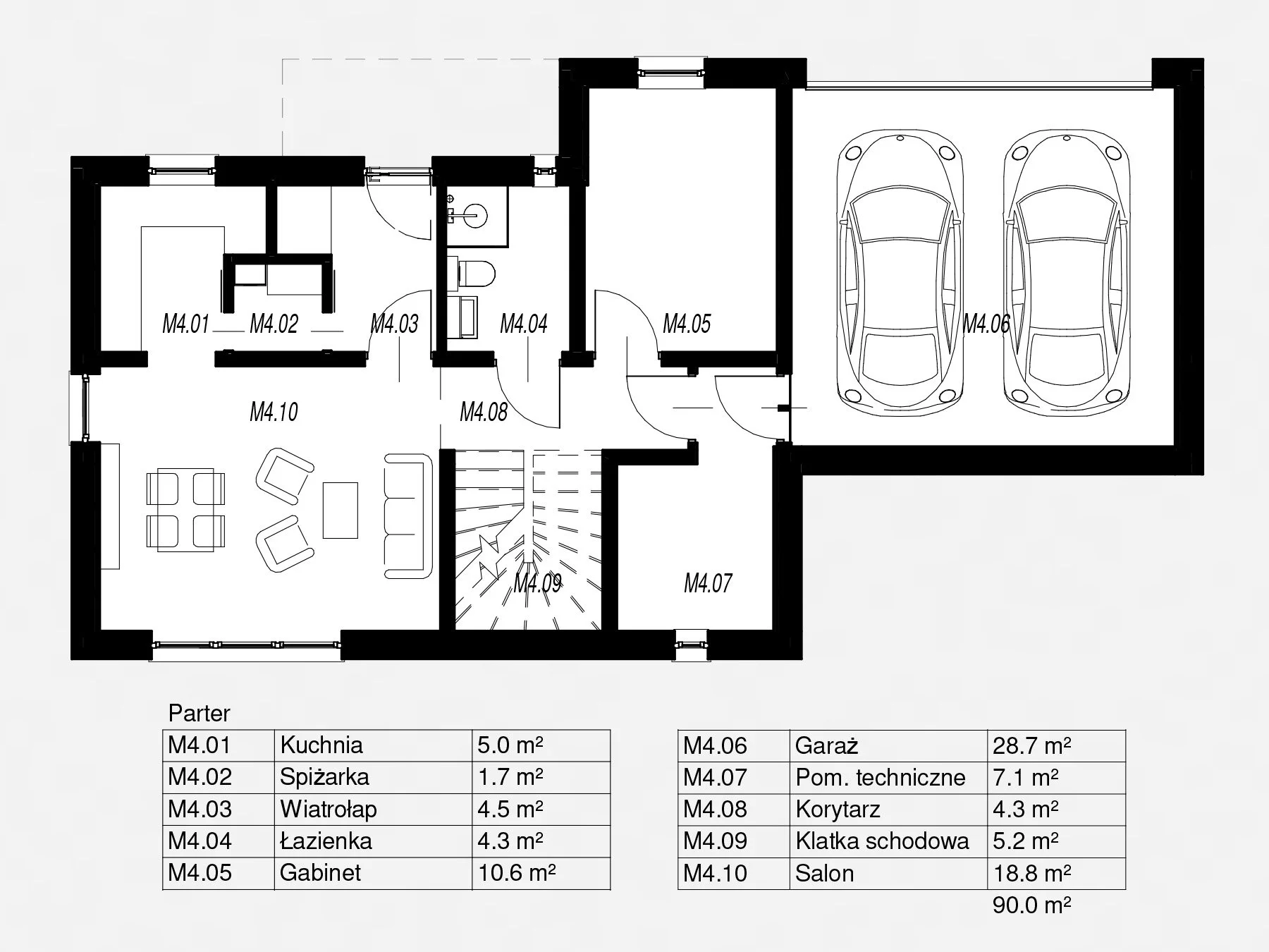
Parter – 90,0 m²

  • Kuchnia – 5,0 m²

  • Spiżarka - 1,7 m²

  • Wiatrołap - 4,5 m²

  • Łazienka - 4,3 m²

  • Gabinet - 10,6 m²

  • Garaż - 28,7 m²

  • Pom. tech. - 7,1 m²

  • Korytarz- 4,3 m²

  • Klatka schodowa - 5,2 m²

  • Salon - 18,8 m²

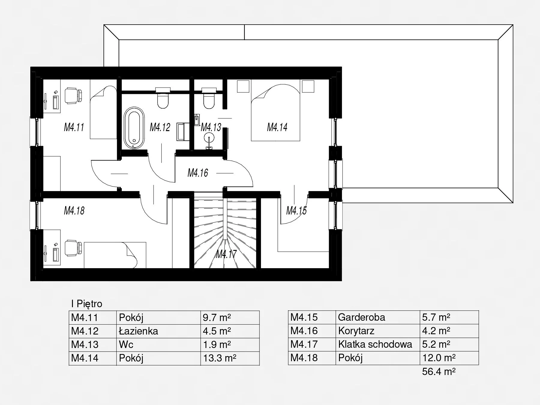
Poddasze – 49,2 m²

  • Pokój - 8,5 m²

  • Łazienka - 4,5 m²

  • Wc - 1,9 m²

  • Pokój - 11,7 m²

  • Garderoba - 4,6 m²

  • Korytarz - 4,2 m²

  • Klatka schodowa - 4,2 m²

  • Pokój – 9,8 m²

Łącznie - 139,5 m²

TECHNOLOGIA BUDYNKU:

Fundament

  • płyta fundamentowa

  • płyta grzewcza LEGALETT

Konstrukcja

  • konstrukcja drewniana szkieletowa

  • prefabrykacja częściowa

Dach

  • dachówka ceramiczna karpiówka
    lub

  • blacha płaska na rąbek

Elewacja

  • płytka ceramiczna Elastolith

  • deska elewacyjna

  • tynk cienkowarstwowy

PROJEKT W OPRACOWANIU

POWIERZCHNIE BUDYNKU:

Powierzchnia zabudowy: 115,52 m2

Powierzchnia użytkowa: 127,7 m2

Powierzchnia całkowita: 191,49 m2

Wymiary budynku: 16,3 × 8,6 m

Minimalne wymiary działki: 24,3 × 17,6 m

INNE PARAMETRY BUDYNKU:

Liczba kondygnacji: 2

Liczba pokoi: 5

Garaż: 2-stanowiskowy, wbudowany

Technologia: Wood core house

Wysokość budynku: 8,1 m

Kąt nachylenia dachu: 45 stopni

ZESTAWIENIE POMIESZCZEŃ:

Parter – 90,0 m²

  • Kuchnia – 5,0 m²

  • Spiżarka - 1,7 m²

  • Wiatrołap - 4,5 m²

  • Łazienka - 4,3 m²

  • Gabinet - 10,6 m²

  • Garaż - 28,7 m²

  • Pom. tech. - 7,1 m²

  • Korytarz- 4,3 m²

  • Klatka schodowa - 5,2 m²

  • Salon - 18,8 m²

Poddasze – 49,2 m²

  • Pokój - 8,5 m²

  • Łazienka - 4,5 m²

  • Wc - 1,9 m²

  • Pokój - 11,7 m²

  • Garderoba - 4,6 m²

  • Korytarz - 4,2 m²

  • Klatka schodowa - 4,2 m²

  • Pokój – 9,8 m²

Łącznie - 139,5 m²

TECHNOLOGIA BUDYNKU:

Fundament

  • płyta fundamentowa

  • płyta grzewcza LEGALETT

Konstrukcja

  • konstrukcja drewniana szkieletowa

  • prefabrykacja częściowa

Dach

  • dachówka ceramiczna karpiówka
    lub

  • blacha płaska na rąbek

Elewacja

  • płytka ceramiczna Elastolith

  • deska elewacyjna

  • tynk cienkowarstwowy

REALIZACJA PROJEKTU I ADAPTACJA DO DZIAŁKI

Czas przygotowania dokumentacji zależy od statusu projektu.

  • Projekty gotowe są przygotowywane do przekazania w terminie około 20 dni od zamówienia.

  • Projekty będące w opracowaniu są dostępne w terminie około 60 dni, po zakończeniu prac projektowych.

Każdy projekt wymaga adaptacji do warunków konkretnej działki, zgodnie z miejscowym planem zagospodarowania przestrzennego lub decyzją o warunkach zabudowy.

Adaptacja projektu może zostać wykonana przez lokalnego architekta inwestora lub w ramach dodatkowej usługi oferowanej przez pracownię TGARCHITEKT.
Zakres i koszt adaptacji ustalany jest indywidualnie na podstawie lokalizacji oraz uwarunkowań działki.

W celu uzyskania szczegółowych informacji lub zamówienia projektu prosimy o kontakt za pomocą poniższego formularza.